連續式均化庫

序號 名稱及規格 單位 數量 備注 1 氣箱式脈沖收塵器PPCS32-4 風機:9-26 No 8D星形卸灰閥:300×300 套 1 2 庫頂進料系統 套 1 3 提升機TGD400×38000 輸送能力:150m3/h料斗速度:1.5m/s 減速機ZLY22-20 電動機Y225S-4 37KW 臺 1 4 中心室排氣管 只 1 5 卸料裝置B400/315 套 2 6 庫內充氣箱及管路系統 套 1 7 FU鏈式輸送機FU400×L輸送能力110m3/h料斗速度30m/min 只 1 L由工藝定 8 四八嘴空氣分配閥Φ500mm 擺線針輪減速機BWY2715-1505 1.5KW 套 1 9 羅茨風機(均化用)ARD-145 風量18.4m3/min風壓68.6Kpa 37KW 空氣過濾器、進、出消聲器、壓力表、止回閥、逆轉閥、接頭、底座等 臺 1 10 FU鏈式輸送機FU400×L 輸送能力110m3/h料斗速度30m/min 只 1 L由工藝定
一、概述
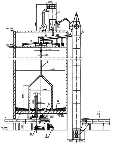
連續式均化庫是生料從庫頂連續進料,經過充氣攪拌的同時連續出料,該庫在中心位置設一個圓柱形混合室,以降低庫內卸料壓力,消除漏斗流,在混合室周圍6-12卸料孔,在混合室與庫壁之間有6-12個充氣區,卸料時輪流向中心室進料,進入混合室的物料因混合室連續充氣而進一步混合,使合格的生料從高位溢流管卸出,多余氣體則由排氣管排至外環區,并抽至收塵器凈化,但要求生料制備系統連續穩定可靠,連續式均化庫具有投資省,電耗低,工藝布置靈活,結構緊湊,操作簡單等特點。其均化值為5-9,電耗0.1-0.2kwh/t。
連續式均化庫是生料從庫頂連續進料,經過充氣攪拌的同時連續出料,庫在中心位置設一個圓柱形混合室,以降低庫內卸料壓力,消除漏斗流。在混合室周圍6-12卸料孔,在混合室與庫壁之間有6-12個充氣區,卸料時輪流向中心室進料,進入混合室的物料因混合室連續充氣而進一步混合,使合格的生料從高位溢流管卸出,多余氣體則由排氣管排至外環區,并抽至收塵器凈化,但要求生料制備系統連續穩定可靠,具有投資省,電耗低,工藝布置靈活,結構緊湊,操作簡單等特點。
二、連續式均化庫示意圖
.jpg)
.jpg)
三、技術參數表(Φ12米連續式均化庫設備表)
地址:江蘇省南通市海安縣白甸鎮思富工業園 電話:0513-88441116 傳真:0515-88449996 郵箱:jsjx_.108@163.com


